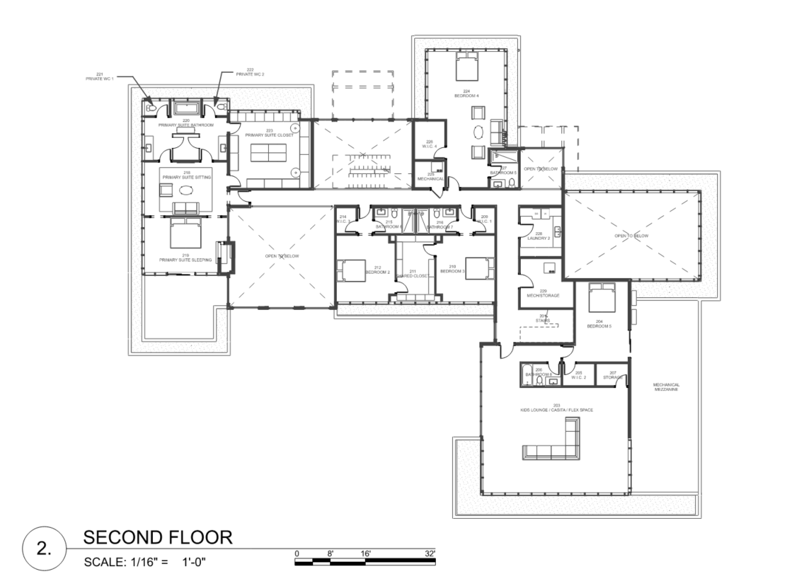
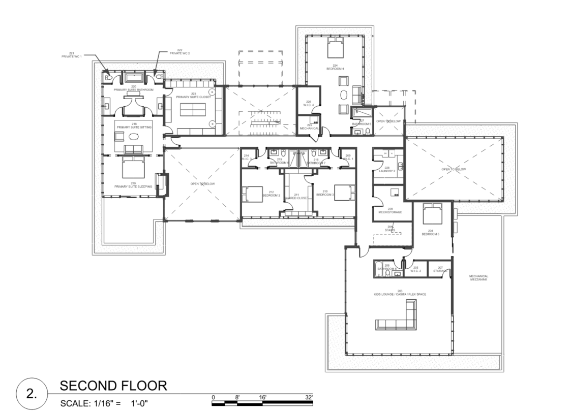
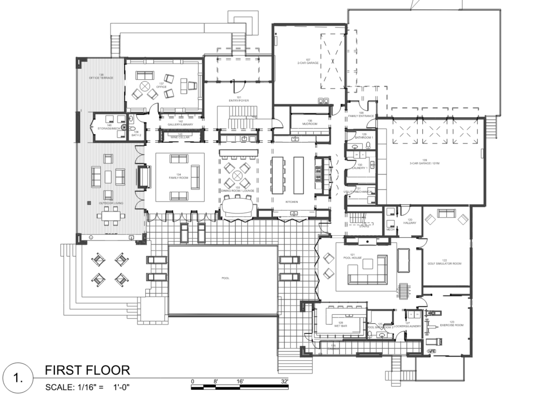
Spanning two levels, the Home features 8,500 square feet of indoor living space with an additional 2,500 square feet of elevated outdoor living space.
The Home has 5 Bedrooms and 8 Bathrooms. Filling the additional rooms:
- 2 Story Living and Main Entry
- Premium Kitchen and Dining Suite
- 1,150 sqft Primary Suite
- Private Office and Private Entry
- Exercise Room and Golf Simulator
- Sport Court
- Kids Play Lounge
- Pool House and Full Service Bar
- Infinity Pool and Spa
- Motor court and 5 Interior Garage Spaces